功能:
消防应急照明和疏散指示系统由控制器(主机)、集中电源(供电),分配电装置(分机)和灯具(疏散指示灯、应急照明灯)等几部分组成。该系统配合火灾报警控制器的使用,在危急时刻,能够快速针对风向、就近出口、火灾的走势、人群密度做出分析,给出安全的疏散路径指示,智能打开消防应急标志灯的指示方向以及应急照明灯,帮助建筑内的人群实时地选择逃生路线,指引安全逃生方向,保障群众的人身安全,为各商家担心的安全问题解决了后顾之忧。
应用范围:
适用于机场、轨道交通、隧道、客运枢纽、医院、学校、体育馆、展览馆、星级酒店、高端商业楼盘等场所。
订货范例:
具体型号:A-BLJC-2OEⅡ1W-A420
技术要求:安全出口、吊挂、双面显示
通讯协议:无
辅助电源:DC36V
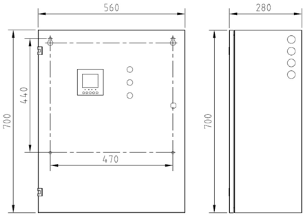
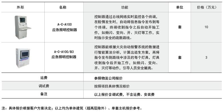
应急照明控制器
输入电源:AC220V/50Hz,
备用电源:阀控密封式铅酸蓄电池,容量12V/12Ah,2节
应急时间:应急时间;切换时间
配置:工业PC板,2G内存,32G固态硬盘存储
显示操作:17寸液晶显示器,LED指示灯;人机接口为鼠标键盘,按键;
打印机:热敏打印机
下行总线:4个CAN总线:连接分配电装置与集中电源
上行总线:
1个CAN:预留,可用于连接火灾报警控制器或其他用途;
1个RS485:预留,可用于连接火灾报警控制器或其他用途;
1个RS232:预留,可用于连接火灾报警控制器或其他用途;
1个以太网口:预留,可用于连接火灾报警控制器或其他用途。
外壳材质:金属
防护等级:IP30
运行温度:0℃-45℃
应急照明集中电源
输入电源:AC220V/50Hz
输出电源:DC36V,0.5kW
备用电源:阀控密封式铅酸蓄电池,容量12V/38Ah,4节
本机功耗:10W
应急时间:应急时间;切换时间
显示:点阵液晶显示,LED指示灯
操作方式:按键,开关操作
通讯总线:上行CAN
外壳材质:金属
防护等级:IP30
运行温度:-10℃-45℃
安装方式:壁挂
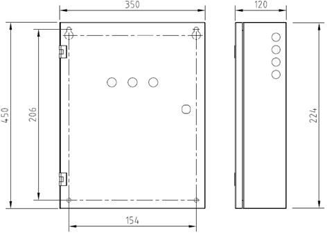
应急照明分配电装置
输入电源:DC36V,0.5kW
输出电源:回路输出电压DC36V,电流≤2A
通讯回路:5回路
本机功耗:10W
应急时间:应急时间;切换时间
显示:LED指示(主电、应急、故障)
通讯总线:上行CAN/下行ABUS
外壳材质:金属
防护等级:IP30
运行温度:-10℃-45℃
安装方式:壁挂
应急照明集中电源

应急照明分配电装置

应急照明控制器

应急照明集中电源

消防应急照明灯具和标志灯具






